Vitaler Wohnraum auf dem Land: Die Bauherren von Haus Ebersberg vermieten alle vier Wohnungen und ermöglichen so modernes, wohngesundes und energieeffizientes Wohnen für ein bis zwei Personen je Einheit. Die besonderen Ansprüche an Nachhaltigkeit und architektonische Planung waren ausschlaggebend für die Entscheidung, das Mehrparteienhaus von Regnauer entwerfen und bauen zu lassen.
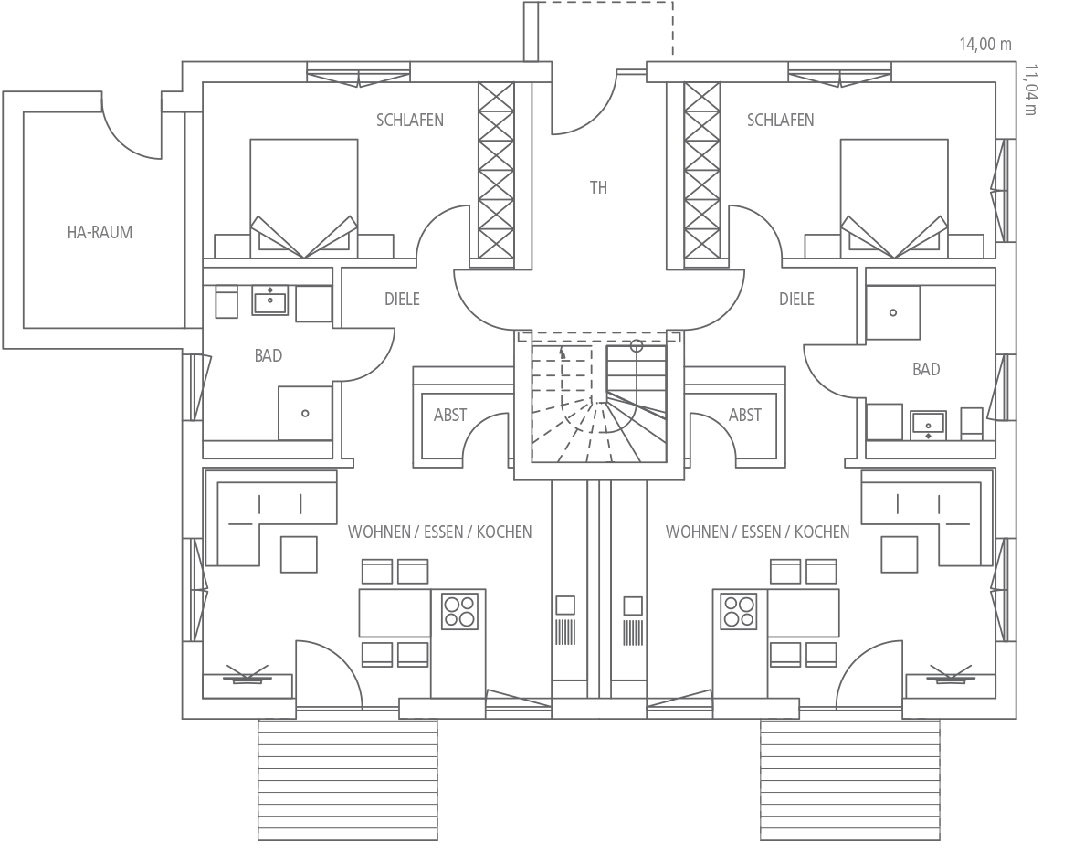
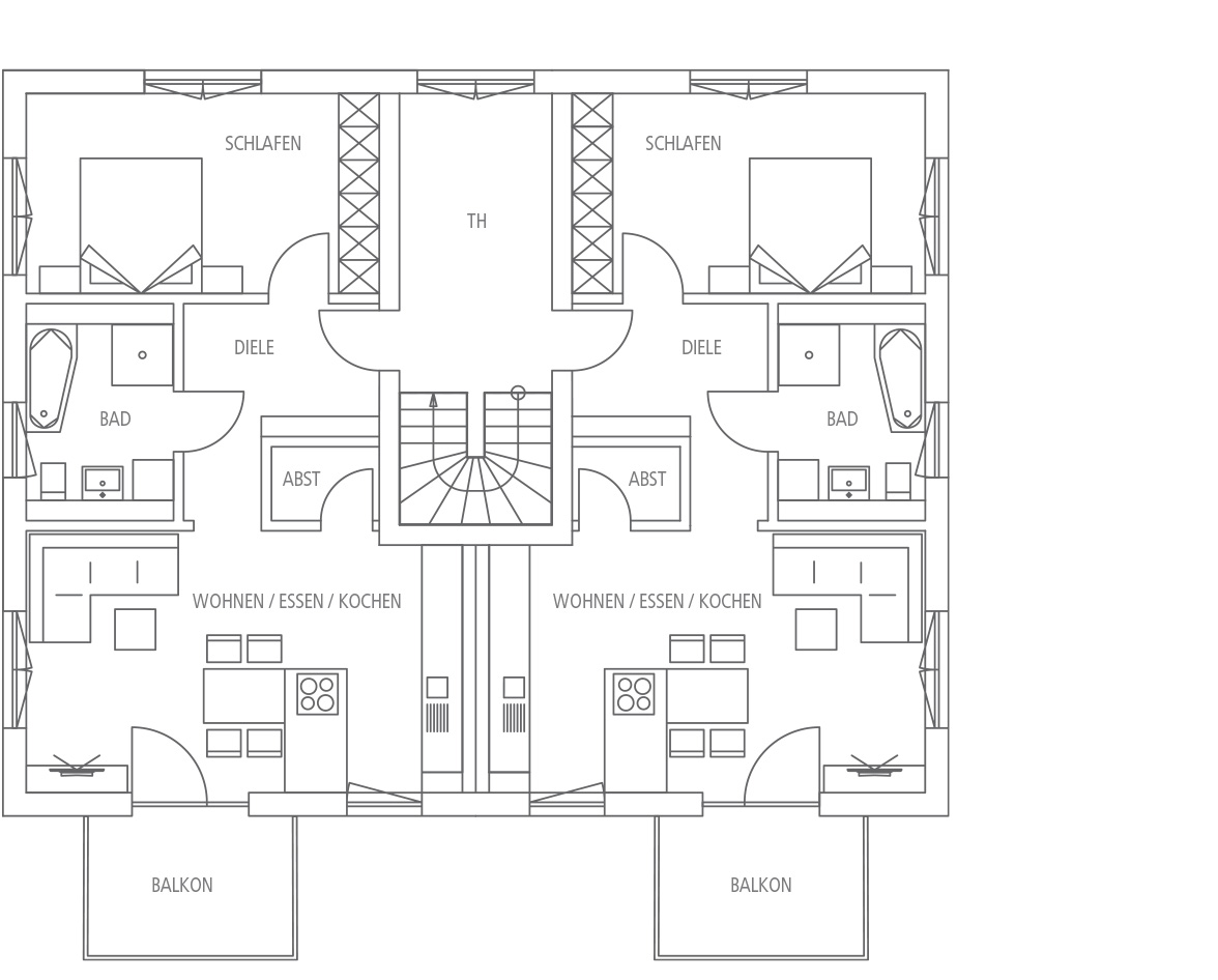
Die Wohnungen präsentieren sich großzügig und optimal zugänglich – im Erdgeschoss sogar vollständig barrierefrei.
Das Highlight jeder der vier Wohnungen: der offene Wohn-/Essbereich mit integrierter Küche. Terrassen bzw. Balkone erweitern das Raumgefühl ins Freie. Im Erdgeschoss mit ansprechender Sichtschutz-Lösung. Ein geschickt eingeplanter Abstellraum nutzt Verkehrsfläche optimal. Im Bad finden Wanne und Dusche sowie die Waschmaschine Platz.