Ein original Regnauer Vitalhaus als Anbau an ein bestehendes Gebäude: Das geht! Dank geschickter Planung und raffinierter Ideen. Als erstes stechen die üppigen Glasfronten ins Auge; ein echtes Highlight der beeindruckende Wintergarten versetzt zum Haus. Der kurze Dachüberstand bringt die Fassadengestaltung perfekt zur Geltung.
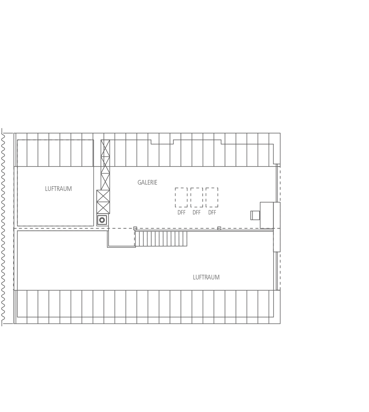
Was das Fensterbild von außen verspricht, wird im Innern traumhafte Wirklichkeit: Licht, Höhe, Freundlichkeit, Großzügigkeit, wohin der Blick auch schweift. Geschickte Platzsparlösungen sind gleichzeitig prägende Designelemente, etwa die Treppe vom Obergeschoss zur offenen Galerie.
„Upside Down“ ist das Motto, mit dem die Grundrissgestaltung für verschiedene Lebenssituationen die optimalen Möglichkeiten bietet: Im Obergeschoss findet sich der Bereich für Wohnen, Essen und Kochen, der sich über die ganze Länge des Hauses erstreckt. In der Privatsphäre des zweiten Stocks liegt außerdem ein Schlafzimmer mit Wellness-Bad. Das Erdgeschoss teilt sich in zwei Bereiche mit vier Zimmern und zwei Duschbädern auf. Mehrgenerationenwohnen also problemlos möglich!